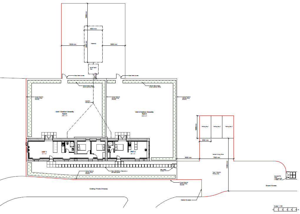
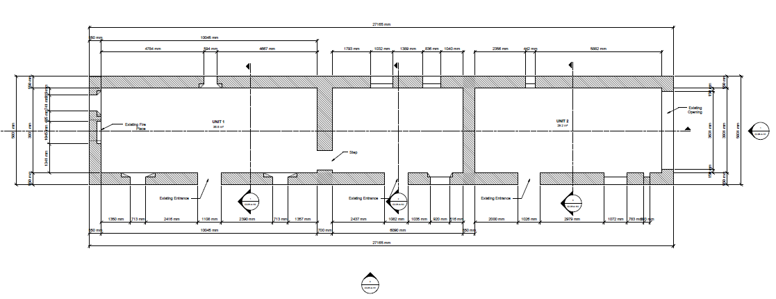
Converted Steading | Thurso, Scotland

This project in Thurso began life as a former horse stable completely uninhabitable and in poor condition. Through detailed measured surveys, carefully prepared plans, and full planning application drawings, we secured approval to transform the building into a beautiful converted steading home.

The design respects the traditional character of the original structure while introducing modern, comfortable living spaces. Natural stone, timber cladding, a slate roof, and large glazed openings help balance contemporary design with the rugged Caithness landscape.

From existing elevations and sections to proposed layouts and 3D visuals, this project demonstrates how thoughtful design can breathe new life into redundant rural buildings.

Next
Next

Kitchen Extension - Edinburgh